
είδος μελέτης: μελέτη αποκατάστασης, επανάχρησης. συμμετοχή σε αρχιτεκτονικό διαγωνισμό ιδεών
λειτουργία: μουσείο εναλίων αρχαιοτήτων
επιφάνεια: περίπου 2000 τμ
τοποθεσία: Πειραιάς, Ελλάδα
ομάδα μελέτης: Μόρας Αντώνης, Μπρεζα Ε., Μπούτου Α., Παπαδημητράκη Π., Σιδηροπούλου Ν.
διοργανωτής: Πολιτιστική Ακτή Πειραιά
έτος μελέτης: 2014


Aναγνωριση περιοχής
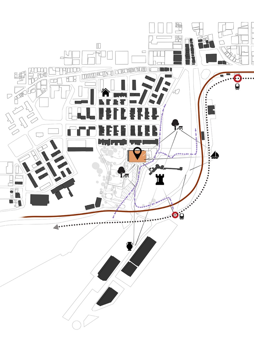
Η περιοχή μελέτης βρίσκεται στο μεταίχμιο μεταξύ των ορίων του αστικού ιστού του Πειραιά και της παράκτιας ζώνης με εμφανείς διακυμάνσεις στο χαρακτήρα και την πυκνότητα της δόμησης. Εμφανίζει μια σύνθετη εικόνα με έντονες μεταβάσεις από το πυκνοδομημένο αστικό περιβάλλον στη χαμηλής δόμησης συνοικία της Δραπετσώνας και καταλήγει στα βιομηχανικού χαρακτήρα κτίρια του λιμένα. Η δυσκολία στην πρόσβαση καθώς και η προβληματική σύνδεση με τον ιστό καθιστούν την περιοχή δύσβατη, με αποτέλεσμα να αλλοιώνεται την εικόνα της. Η ανάμνηση της ιδιαιτερότητας που είχε η περιοχή στην αρχαιότητα έχει πλέον αλλοιωθεί σημαντικά. καθότι ο αρχαιολογικός χώρος φαίνεται αποκομμένος από το υπόλοιπο περιβάλλον και η έλλειψη οργάνωσης των δημόσιων χώρων την εντείνει, καθιστώντας αναγκαία την παρέμβαση στο χώρο με σκοπό την αξιοποίηση και τον επαναπροσδιορισμού του. Συνοψίζοντας, η περιοχή παρέμβασης εμφανίζει ποιοτικά χαρακτηριστικά για την δημιουργία ενός νέου πόλου έλξης πολιτισμικού χαρακτήρα.

CONTEXT
Το μουσείο ως εξωτερικότητα. Με αυτό τον τρόπο αναφερόμαστε στη σχέση του μουσείου με το συγκείμενο του. Ο ορισμός του συγκειμένου δημιουργεί τους όρους με τους οποίους γίνονται διαχειρίσιμα τα όρια του αντικειμένου άλλα κυρίως προσδιορίζουν τον τρόπο με τον οποίο συνομιλεί και διαντιδρά με το περιβάλλον του. Διακρίνουμε δύο συγκείμενα, το χωρικό – εγγύς συγκείμενο και το συμβολικό – αναφοράς.
Το εγγύς συγκείμενο είναι αυτό του άμεσου πεδίου στο οποίο καλείται να χωροθετηθεί το μουσείο, μαζί με τους περιορισμούς των άλλων κτιρίων, με κύριο εκείνον του υπόγειου πάρκινγκ. Το χαρακτηριστικότερο στοιχείο αυτού του συγκειμένου, όπως προέκυψε από την αναγνώριση της περιοχής μελέτης, είναι η ριζική αλλοίωση που έχει υποστεί το τοπίο – η οποία δεν είναι μόνο αισθητική, αλλά και λειτουργική, καθώς δημιουργεί ασυνέχειες στον αστικό ιστό που προκαλούν ερήμωση των δημόσιων χώρων. Με σκοπό την επανενεργοποίηση του δημόσιου χώρου, κρίνεται απαραίτητη τόσο η διευκόλυνση των κινήσεων, όσο και η δημιουργία ερεθισμάτων που να αναπτύσσονται σταδιακά, έτσι ώστε οι κινήσεις σε αυτόν να εξελίσσονται χωρικά και να είναι δυνατό να προσαρμόζονται σε βάθος χρόνου. Εξαιρετικά κρίσιμη θεωρείται και η σχέση της προτεινόμενης πλατείας με τον αρχαιολογικό χώρο με έμφαση στη διαχείριση της μέσα από την επαναπροσδιοριζόμενη γεωγραφία. Γρήγορα εντοπίστηκε ότι το κυριότερο εμπόδιο για τη μετάβαση από την πλατεία προς τον αρχαιολογικό χώρο αλλά και τη γειτονιά του Κερατσινίου γενικότερα, ήταν η άβολη χωροθέτηση του κτιρίου.


Η προτεινόμενη επέκταση του πεζοδρομίου προς την πλευρά του αρχαιολογικού χώρου δε θα μπορούσε να θεωρηθεί επαρκής καθώς επιβάλλει μία εξαιρετικά μεγάλη διαδρομή η οποία μάλιστα θα μπορούσε να αποδειχθεί ιδιαίτερα αποθαρρυντική τους καλοκαιρινούς μήνες, εξαιτίας της απουσίας σκιάς. Η φύτευση και η δημιουργία στοιχείων σκίασης απορρίφθηκαν με το σκεπτικό ότι θα αλλοίωναν το τοπίο γύρω από τα τείχη λειτουργώντας ως οπτικά εμπόδια. Εναλλακτικά, προτείνεται η δημιουργία μίας ραμπόσκαλας παράλληλης με την οδό Κανάρη, η οποία θα αντλεί διαρκώς πληροφορία από το εσωτερικό του μουσείου χάρη στην εισαγωγή διαφάνειας στα σημεία τομής της με το κτίριο. Με αυτό τον τρόπο προκύπτει μία ενδιάμεση διαδρομή μεταξύ εσωτερικού και εξωτερικού, η οποία ενσωματώνει και τη ζωή των περίοικων στη λειτουργία του μουσείου, καθότι εκείνοι θα εισάγουν σε αυτό τις δικές τους χρονικότητες ως θέαμα παράλληλο με τα εκθέματα.




Για να ενισχυθούν ακόμη περισσότερο οι δεσμοί με την κοινωνική ζωή γύρω από το μουσείο και για να ανοιχτεί αυτή προς το λιμάνι και κατ’ επέκταση τη θάλασσα, προτείνεται η συνέχεια των κινήσεων των πεζών από Κολοκοτρώνη προς την πλατεία του μουσείου μέσα από τη δημιουργία ράμπας, προσβάσιμης και από ΑΜΕΑ, η οποία θα τους φέρνει κατευθείαν στο κέντρο της πλατείας. Παράλληλα με τις λειτουργίες της πλατείας, που μπορεί θεματικά να ενημερώνεται με γεγονότα από το μουσείο, στην οροφή του πάρκινγκ προτείνεται η δημιουργία ενός πάρκου το οποίο δε θα διαχωρίζεται υψομετρικά από το επίπεδο της οδού Ανδρούτσου. Για αυτό το λόγο,το πάρκινγκ διαμορφώνεται ως ισόγειο. Σε αυτή την περίπτωση, η οροφή του θα μπορούσε να χρησιμοποιηθεί ως βεράντα με ενδιαφέρουσα εποπτεία του λιμένα.

Ως συμβολικό συγκείμενο ή συγκείμενο αναφοράς θεωρούμε το Iπποδάμειο σύστημα και τις αναλογίες του, όπως εφαρμόστηκαν στο σχεδιασμό των οικοδομικών τετραγώνων της αρχαίας πόλης. Με την εισαγωγή του καννάβου στο σχεδιασμό, επιχειρούμε να αναφερθούμε στον τρόπο με τον οποίο το μουσείο και ο περιβάλλον χώρος διαμεσολαβούν την ιστορικότητα του Πειραιά με το να προσανατολίζουν τις κινήσεις και να εισάγουν μια μορφή σωματικότητας που αγκυλώνεται ιστορικά.

CONCEPT
Το μουσείο ως εσωτερικότητα.
Αυτή η ενότητα αναφέρεται στην εσωτερική διαδικασία σύμφωνα με την οποία το μουσείο αποκτά συνεκτική συγκρότηση, χαρακτήρα και ταυτότητα. Στοιχεία όπως ο κάνναβος από το Ιπποδάμειο εισέρχονται ξανά στο σχεδιασμό επιχειρώντας έτσι και την κατάργηση ορίων όπως το εσωτερικό και το εξωτερικό σε συνδυασμό με τη νέα προτεινόμενη γεωγραφία και τη διαφάνεια.


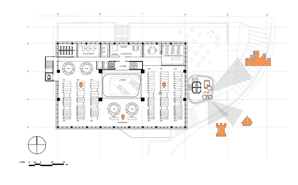
Σύμφωνα με το κτιριολογικό πρόγραμμα, οι χώροι των εκθέσεων θα πρέπει να αναπτύσσονται αφηγηματικά τόσο γραμμικά, όσο και με ελεύθερο τρόπο. Χωρίζονται σε δυο επίπεδα, το χώρο του παλιού συνεργείου και εκείνον της πιλοτής. Στο πρώην συνεργείο τοποθετούνται ακόμη τα εργαστήρια με τα εκπαιδευτικά προγράμματα, εργαστήρια συντήρησης και αποθήκες, ηλεκτρομηχανολογικές εγκαταστάσεις, κατάστημα αναμνηστικών και κατακόρυφες κινήσεις. Στην πιλοτή τοποθετείται αίθουσα πολλαπλών χρήσεων, εστιατόριο, τεχνικές εγκαταστάσεις και υπαίθριοι και ημιυπαίριοι χώροι έκθεσης. Ωστόσο, παρότι ζητείται η τοποθέτηση των κατακόρυφων κινήσεων στο αίθριο, εκτιμάται ότι ο όγκος αυτών καθώς και η κατακορυφότητα τους θα το κατακερμάτιζε.
Για τη σύλληψη του μουσείου σε συνδυασμό με τη μουσειολογική σημαντικό ρόλο στην λήψη των αποφάσεων είχε για εμάς η σχετικότητα των ακόλουθων προβληματισμών: τι έχει να προσφέρει ένα μουσείο στην εποχή μας; Με ποιο τρόπο το μουσείο είναι κάτι παραπάνω από ένα δυνητικά ψηφιακό αρχείο; Είναι το μουσείο ένα θησαυροφυλάκιο στο οποίο αποθηκεύουμε ευρήματα; Δικαιολογούν τα συγκεκριμένα ευρήματα μία τέτοια θέση; Ποια η ανάγκη ενός μουσείου πόλης όταν τα σημαντικότερα εκθέματα βρίσκονται ουσιαστικά αλλού; Κατά πόσο ένα τέτοιο μουσείο μπορεί να προσαρμοστεί θεματικά στο μέλλον; Κατά πόσο αυτό το δυσλειτουργικό κτίριο, με όλα τα ζητήματα που το χαρακτηρίζουν, όπως η προβληματική ένταξη στο περιβάλλον του, τα στατικά και τα μορφολογικά, μπορεί να αντεπεξέλθει σε ένα τέτοιο φορτίο; Ποια θα μπορούσε να είναι η μοναδικότητα του συγκεκριμένου μουσείου που να δικαιολογούσε όχι μόνο τη συμβολική παρουσία του αλλά και την ουσιαστική ύπαρξη του δίπλα σε μουσεία τόσο σημαντικά όσο αυτό της Ακρόπολης ή το Αρχαιολογικό; Είναι κάτι περισσότερο αυτό το μουσείο από ένας χώρος αποθήκευσης, εργαστήρια, καφέ/εστιατόριο και κατάστημα αναμνηστικών;

Δύο είναι τα στοιχεία που μπορούν να προσδώσουν μοναδικότητα στο συγκεκριμένο μουσείο. Το πρώτο είναι οι άνθρωποι που δουλεύουν σε αυτό. Οι αρχαιολόγοι και οι εξειδικευμένοι τεχνίτες των οποίων η δραστηριότητα επεκτείνεται πολύ πιο μακρυά από τα όρια του κτιρίου. Το δεύτερο είναι οι κάτοικοι της γύρω περιοχής οι οποίοι θα μπορούσαν να αξιοποιήσουν τους χώρους του μουσείου ως δημόσιους χώρους. Άλλωστε, πρόκειται για ένα μουσείο της Ιστορίας της πόλης.




Για να επιτευχθεί κάτι τέτοιο, θα πρέπει να αλλάξει η συνήθης οπτική σχετικά με το πρόγραμμα και ειδικότερα την υφέρπουσα μνημειακότητα και τη δυνατότητα ακτινοβολίας του. Αντί του μεγέθους του, της καλής μορφής του ή της μητροπολιτικότητας του, θεωρείται ότι θα πρέπει να μετατοπιστεί η έμφαση στον τρόπο με τον οποίο τα εκθέματα λειτουργούν ως μάρτυρες παράλληλων δραστηριοτήτων τόσο της πόλης όσο και του τρόπου εργασίας και λειτουργίας των επιστημόνων που σχετίζονται με τα μουσεία. Mε αυτό τον τρόπο, το μουσείο θα επικοινωνήσει το προφανές, ότι το έκθεμα υπάρχει μόνο όσο υπάρχει θεατής, κάποιος που το αναδεικνύει ως τέτοιο. Φυσικά, η θέση μας αποτελεί μία συμπληρωματική / παράλληλη ανάγνωση στο υφιστάμενο κτιριολογικό πρόγραμμα και σε καμία περίπτωση δεν το ακυρώνει.

Οι λειτουργίες του προγράμματος οργανώνονται σε τέσσερις κατηγορίες. Η πρώτη αφορά στον πυρήνα των εκθεμάτων. Η δεύτερη αφορά σε εκείνους τους χώρους που είναι χρονικά και προγραμματικά ευέλικτοι (προσωρινές εκθέσεις, εργαστήρια, αίθουσα πολλαπλών, foyer).Η τρίτη συγκροτείται από τον πυρήνα των “επιστημών των μουσείων”. Η τέταρτη δεν έχει καποια μορφή αυθυπαρξίας, αλλά λειτουργεί οργανωτικά μέσα από την περιπλάνηση στο μουσείο ως αφήγηση, συγκεράζοντας το location του μουσείου, αρχιτεκτονικά δομικά στοιχεία, όπως το αίθριο, και νέες τεχνολογίες εκπαίδευσης και αναπαράστασης, όπως η augmented reality. Επιπλέον, προτείνεται η προσθήκη της βασικής λειτουργίας του watchtower ως σημείο θέασης, ένα εν δυνάμει σύμβολο που περισσότερο έλκει για να βιωθεί παρά για να αποτυπωθεί ως αντικείμενο επί βάθρου.

ΒΙΟΚΛΙΜΑΤΙΚΗ ΠΡΟΣΕΓΓΙΣΗ
Αειφορία.
Υλικά και Φυτεύσεις.
Το κλίμα στον Πειραιά είναι αττικό, δηλαδή διακρίνεται από ήπιους χειμώνες και ακόμη ηπιότερα φθινόπωρα. Αυτό καθιστά την περιοχή ιδανική για κοινωνική ζωή στην ύπαιθρο, με μόνη ανάγκη τη μέριμνα
για προστασία από τον ήλιο, ιδιαίτερα τους καλοκαιρινούς μήνες. Λαμβάνοντας υπόψιν τον προσανατολισμό της πλατείας, προβλέπεται η δημιουργία φυτεμένων δωμάτων, τόσο στο κτίριο του μουσείου, όσο και στην επιστέγαση του πάρκινγκ, με τη χρήση της φύτευσης για την ανακούφιση από τον ήλιο. Προτείνεται η φύτευση φυλλοβόλων δέντρων και η χωροθέτηση καθιστικών σε εγγύτητα στην επιφάνεια της οροφής του πάρκινγκ, που πλέον ευνοεί την απρόσκοπτη θέα προς τον αρχαιολογικό χώρο. Παράλληλα, η φύτευση προστατεύει το χώρο της πλατείας του μουσείου από τα δυτικά. Ο ίδιος τύπος φύτευσης προτείνεται και για το νότιο τμήμα της πλατείας, σε συνδυασμό με τη χρήση υδάτινων στοιχείων, έτσι ώστε να ανακουφίζονται οι επισκέπτες κατά την αναμονή τους προς επιβίβαση σε τουριστικά λεωφορεία. Η παρουσία των φυλλοβόλων δέντρων κρίνεται ιδανική, καθώς παρέχουν φύλλωμα κατά τις περιόδους που επιθυμείται σκιά, ένα χαρακτηριστικό το οποίο αποβάλλουν κατά τη διάρκεια του φθινοπώρου και του χειμώνα, όταν ο ήλιος είναι απαραίτητος. Η υιοθέτηση της φύτευσης ως παθητικού μέσου δημιουργίας μικροκλίματος θα έχει ως στόχο την εξοικονόμηση ενέργειας αλλά και τον περιορισμό της ηχητικής όχλησης που οφείλεται στις παρακείμενες αρτηρίες υψηλής κυκλοφορίας.
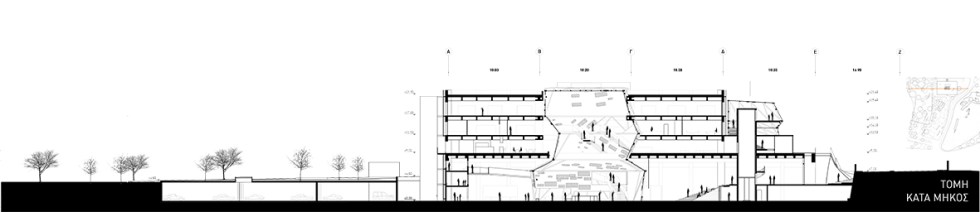
Για τον έλεγχο του σκιασμού στο κτίριο αξιοποιείται η νέα επιδερμίδα του, η οποία προσαρμόζεται παραμετρικά στον προσανατολισμό για την παροχή ιδανικών συνθηκών σκιασμού. Τοποθετούμενη σε απόσταση από την υπάρχουσα ανωδομή, επιτρέπει την απρόσκοπτη κυκλοφορία του αέρα, ενώ παράλληλα επιτυγχάνεται απομάκρυνση των θερμικών φορτίων. Στα υαλοπετάσματα που δε σκιάζονται για λόγους απόλαυσης της θέας και προώθησης της σύνδεσης του μουσείου με τον αρχαιολογικό χώρο, προτείνεται η χρήση ηλιοαπορροφητικών φίλτρων. Ο προσανατολισμός των επιφανειών αυτών στην ανατολή διευκολύνει κατά πολύ ένα τέτοιο ενεργειακό χειρισμό. Το αίθριο αξιοποιείται τόσο ως στοιχείο έμμεσου φωτισμού, όσο και ως ‘ηλιακή καμινάδα’. Η ροή του αέρα συνεπικουρείται από τη γεωμετρία.
Σε επίπεδο αειφορίας, προτείνεται η εγκατάσταση οριζόντιου κυκλώματος κλειστού γεωθερμικού συστήματος το οποίο θα αναπτυχθεί σε μικρό βάθος και θα εκμεταλλευτεί την επιφάνεια του συνόλου του πεδίου (τόσο της πλατείας όσο και του χώρου κάτω από το στεγασμένο χώρο στάθμευσης). Το συγκεκριμένο σύστημα σε συνδυασμό με τη χρήση αντλιών θερμότητας μπορεί να παράξει τα απαραίτητα φορτία για τη θέρμανση του κτιρίου και να υποβοηθήσει σε ένα μεγάλο ποσοστό στην ψύξη του.


status: competition entry
program: thematic museum
area: aprox 2000 sqm
location: Piraeus, Greece
design team: Moras A., Breza E., Butu A., Papadimitraki P., Sidiropoulou N.
client: Piraeus Cultural Coast
year: 2014
ABSTRACT
Our approach to the design of the museum started with a problematisation on the role of the museum nowadays as a social condenser and especially its possible role as a space that is integrated into the social and public realm.
Instead of focusing in designing a building as a symbolic object we tried to conceive it as the solidification of an extended network of relations and open it to the urban scenery, both formally, programmatically and as an educational tool. The singularity of the museum is the role of the personnel and the way that they spatially practise their expertise. All these considered as supportive actions as storing, repairing, cleaning of the artefacts become part of the exhibition.
In order to integrate these disparate functions we organised the museum around a parallel reading line that is comprised of additional stairs, ramps and a watchtower that are augmented with digital real time technologies that target in bringing to front the importance of the local in the understanding of the artefacts instead of the bombardment of encyclopaedic information that is so common to museums of this kind. This way the museum becomes more fun to experience and probably could be easier integrated in the social life of the neighbouring areas that lack an importatant public/social space.

