κατάσταση έργου: προμελέτη
λειτουργία: Σύστημα Σκίασης σε Κτήριο Γραφείων
τοποθεσία: Λάρισα, Ελλάδα
ομάδα μελέτης: Γεωργούλη Χάιδω, Μόρας Αντώνης, Ιακωβάκη Βασιλική
χρονος μελέτης : Καλοκαίρι 2022







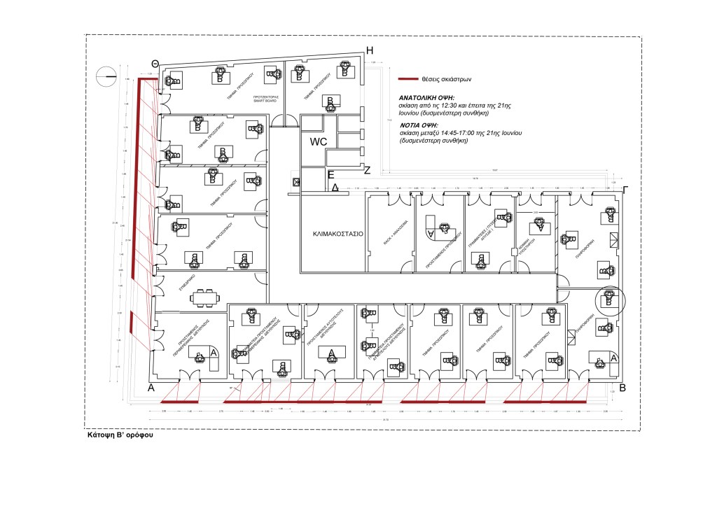
Η παρούσα μελέτη αφορά στο σχεδιασμό ενός συστήματος σκίασης σε υφιστάμενο κτίριο του κέντρου της Λάρισας (μέγαρο Φαντνάνα) που στεγάζει γραφειακούς χώρους. Ο σχεδιασμός αφορά σε κατακόρυφες περσίδες σκίασης που προσφέρουν ολοκληρωτική σκίαση στους εσωτερικούς χώρους του κτιρίου κατά το δυσμενέστερο σενάριο, δηλαδή όταν ο ήλιος βρίσκεται στην υψηλότερη θέση (θερινό ηλιοστάσιο: 21/6) στις εργάσιμες ώρες 10:30-17:00. Συγκεκριμένα, λαμβάνοντας υπόψη τον προσανατολισμό του κτιρίου και τον υφιστάμενο πρόβολο μήκους 1.23 μ. που προστατεύει από την ηλιακή ακτινοβολία το εσωτερικό των γραφείων της νότιας όψης στο χρονικό διάστημα 12:30-14:45 και της ανατολικής όψης από τις 12:30 και έπειτα, προβλέπεται η προσθήκη ενός συστήματος σκιασης κατά τις ώρες 10:30-12:30 στην ανατολική όψη και 14:45-17:00 στη νότια όψη. Πρόκειται για το σχεδιασμό ενός συστήματος κατακόρυφων σταθερών περσίδων σκίασης που τοποθετείται στο όριο του εξώστη και αποτελείται από την εναλλαγή τριών διαφορετικών τύπων περσίδων, οι αποστάσεις και τα μεγέθη των οποίων αποσκοπούν στη πλήρη σκίαση των γραφειακών χώρων τις προαναφερθείσες απαιτούμενες ώρες.

