
κατάσταση έργου: υπό κατασκευή
λειτουργία: Κτίριο Κατοικιών
επιφάνεια: περίπου 600 τμ
τοποθεσία: Λάρισα, Ελλάδα
ομάδα μελέτης: Μόρας Αντώνης, Γεωργούλη Χάιδω, Πάλλη Δέσποινα (αρχιτεκτονική μελέτη) | Δαστιρίδου Κωνσταντίνα (στατικά)
κατασκευή: Μόρας Αντώνης, Δαστιρίδου Κωνσταντίνα
χρονοδιάγραμμα μελέτης και κατασκευής: Σεπτέμβριος 2020 – Νοέμβριος 2021 (αναμένεται)
status: Under Construction
program: Appartment Building
area: aprox 600 m2
location: Larissa, Greece
design team: Moras Antonios, Georgouli Chaido, Palli Despoina (architectural design) |Dastiridou Konstantina (structural design)
construction: Moras Antonis, Dastiridou Konstantina
project schedule: September 2020 – November 2021 (expected)


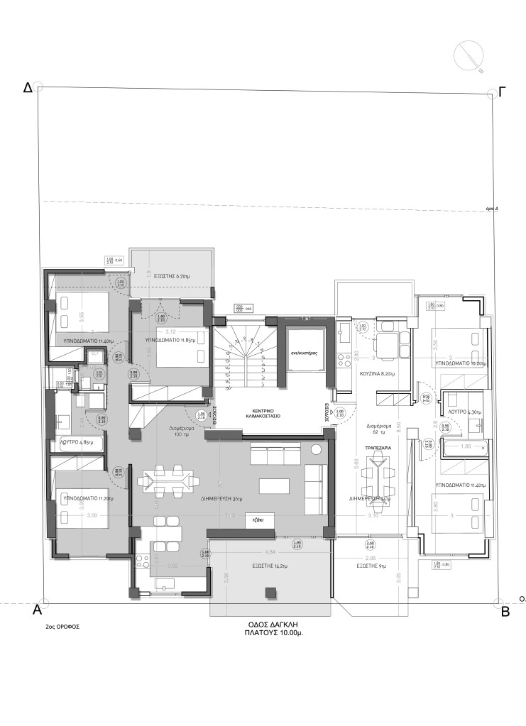
Προκειται για νέο κτίριο διαμερισμάτων σε ένα και δύο επίπεδα, τύπου πολυκατοικίας, στο Λιβαδάκι, στην περιοχή της Νεάπολης στη Λάρισα. Το κτίριο αναπτύσεται σε τέσσερα επίπεδα, σε pilotis και διαθέτει υπόγειο με αποθήκες.
Θα αποτελείται στο σύνολο του από 6 κατοικίες. Οι τρεις (που ενδεικτικά απεικονίζονται στις συνοδευτικές εικόνες και σχέδια) θα είναι τύπου διαμερίσματα που θα αναπτύσσονται σε ένα επίπεδο ενώ οι άλλες τρεις θα είναι τύπου μεζονέτες.
Τα διαμερίσματα έχουν επιφάνεια καθαρή 80τμ, θα είναι πιστοποιημένης ενεργειακής κλάσης Β+ κατά ΚΕΝΑΚ. Διαθέτουν 2 υπνοδωμάτια (ελάχιστης καθαρής διάστασης 3μ), Μπάνιο και ξεχωριστό WC. Οι μεζονέτες έχουν επιφάνεια 125-140τμ και διαθέτουν τρία ή τέσσερα υπνοδωμάτια συνοδευόμενα με άνετους διαμπερείς χώρους διημέρευσης και ηλιολουστους εξώστες και ημιυπαίθριους χώρους.
Όλες οι κατοικίες συνοδεύονται από προκαθορισμένους ανοιχτούς χώρους στάθμευσης στην pilotis του κτιρίου και προκαθορισμένες αποθήκες επιφάνειας 15-19τμ στο υπόγειο.
Το κτίριο αναμένεται να παραδοθεί φθινόπωρο του 2021.
Το κτίριο βρίσκεται δίπλα (walking distance) σε πολυσύχναστες πλατείες (Νεάπολη Λάρισα, Λιβαδακίου), σχολεία (πρωτοβάθμια, δευτεροβάθμια καθώς και διάφορα φροντιστήρια ξένων γλωσσών), χώρους πολιτισμού (Δημοτική Πινακοθήκη Λάρισας- Μουσείο Γ.Ι. Κατσίγρα, Διαχρονικό Μουσείο Λάρισας), αναψυχής (Πυρήνας β’, γυμναστήρια), λιανικό εμπόριο και αγορές τροφίμων (ΑΒ Βασιλόπουλος, Γαλαξίας) και φαγητού (οι δύο πλατείες διαθέτουν εξαιρετικούς χώρους φαγητού και ζαχαροπλαστεία). Η περιοχή είναι ιδανική για κατοικία.
Για πληροφορίες μπορείτε να επικοινωνείτε με τους υπεύθυνους για την κατασκευή:
Antonis Moras, MSc ΑΡΧΙΤΕΚΤΟΝΑΣ ΜΗΧ. ΑΠΘ, PgDS ΣΧΕΔΙΑΣΜΟΣ του ΧΩΡΟΥ ΕΜΠ.
Εργατικής Πρωτομαγιάς 14, Λάρισα.
Τ 6979050551
Dina Dastiridou, MSc ΠΟΛΙΤΙΚΟΣ ΜΗΧΑΝΙΚΟΣ ΑΠΘ, PgDS ΑΝΤΙΣΕΙΣΜΙΚΟΥ ΣΧΕΔΙΑΣΜΟΥ ΤΕΧΝΙΚΩΝ ΕΡΓΩΝ ΑΠΘ. Κύπρου 92, Λάρισα.
Τ 6976128339









Διατίθεται ένας μεγάλος αριθμός επιλογών όσων αφορά τις δυνατότητες διαρρύθμισης των διαμερισμάτων καθώς αποτελούσε ζητούμενο της μελέτης η μέγιστη δυνατή ευελιξία εντός των περιορισμών που έθετε το οικόπεδο
