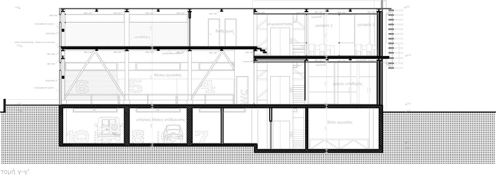
κατάσταση: κτισμένο
λειτουργία: εμπορική, συνεργείο οχημάτων
επιφάνεια: περ. 800 τμ
περιοχή: Λάρισα, Ελλάδα
μελετητική ομάδα: Μόρας Αντώνιος (αρχιτέκτονας μηχ.), Μαραθεύτης Άρης (μηχανολόγος μηχανικός), Πλότσικα Κατερίνα (πολιτικός μηχανικός)
αναθέτων: Ιδιώτης
έτος: 2009

status: Built
program: Commercial, car service station
area: aprox 800 m2
location: Larissa, Greece
team: Moras Antonios (architect), Maratheftis A. (mechanical eng.), Plotsika C. (civil eng.)
client: Private developer
year: 2009


