
είδος μελέτης: δωμάτιο ξενοδοχείου. συμμετοχή σε αρχιτεκτονικό διαγωνισμό ιδεών του περιοδικού ΔΟΜΕΣ
επιφάνεια: 24 τμ
τοποθεσία: κάπου στην Αθήνα, Ελλάδα
ομάδα μελέτης: Καρκατσέλας Νίκος, Μόρας Αντώνιος
(η πρόταση έγινε shortlisted, θεση: 7-30 ανάμεσα σε 260+ προτασεις)

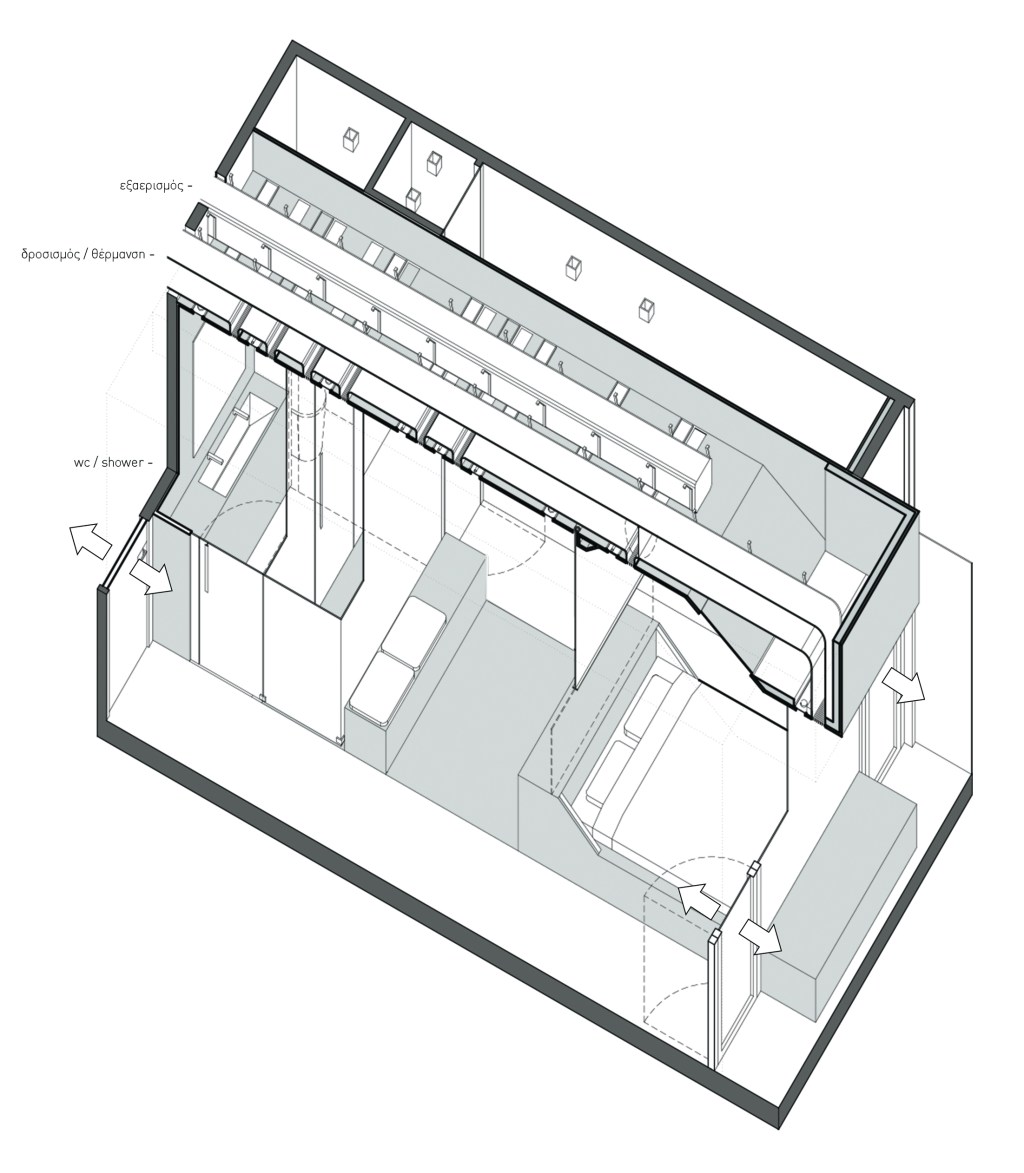
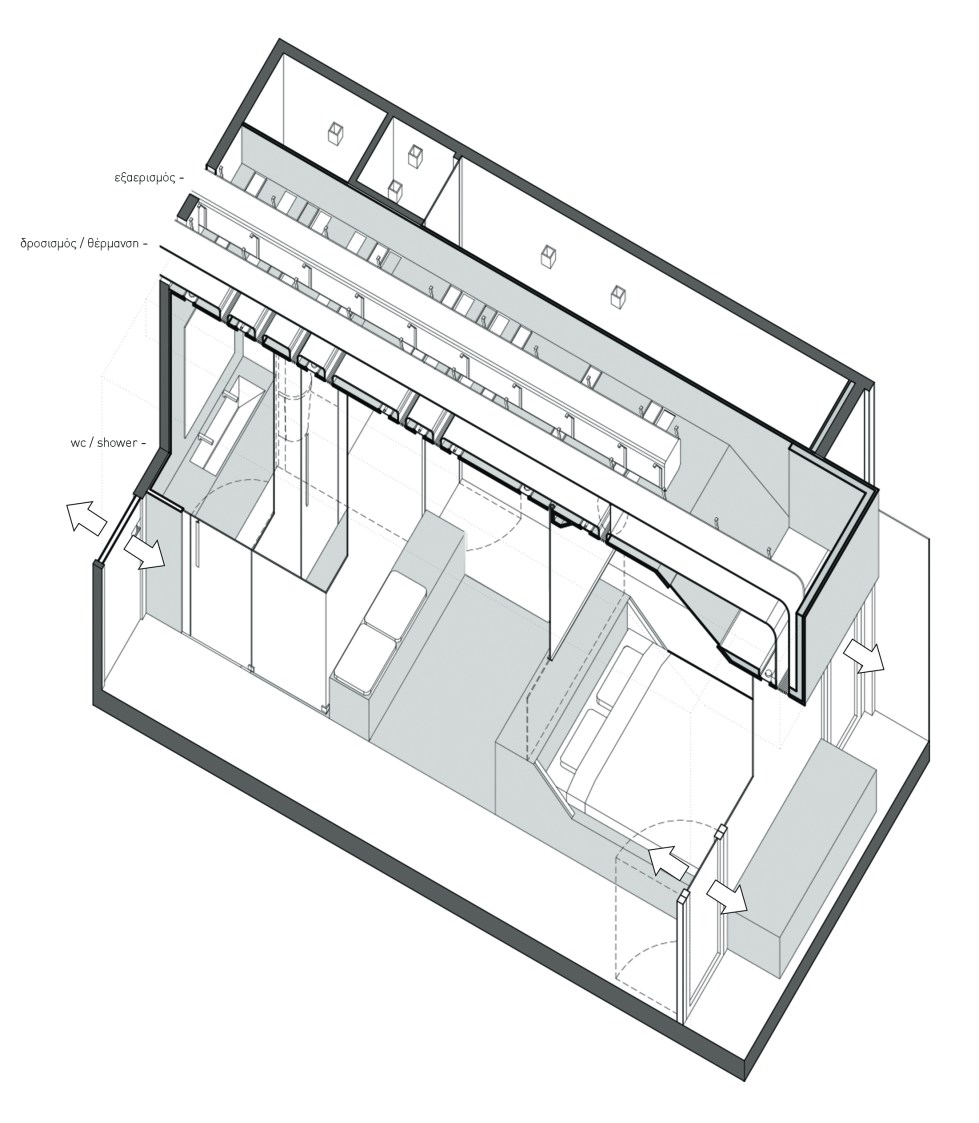
Το room 18 οργανώνεται γύρω από μία μονάδα πάνω στην οποία αναπτύσσεται ο εξοπλισμός του δωματίου προδιαγραφών τεσσάρων αστέρων. Συνθετικά αυτό ικανοποιείται από μία μοναδική και υλικά προσαρμοστική επιφάνεια η οποία αναδιπλώνεται ανάλογα με τη λειτουργία που είναι να εξυπηρετήσει ενώ παράλληλα προσδίδει ξεχωριστό χαρακτήρα και ταυτότητα σε κάθε δωμάτιο μέσω των διαφορετικών υλικών με τα οποία επενδύεται (ξύλο, μάρμαρο, τσιμεντοκονία, μωσαϊκό) .
Η επιφάνεια σχεδιάστηκε με τρόπο που να επιτρέπει να απομονώνονται οι επιμέρους χώροι έτσι ώστε να μπορούν να εξυπηρετηθούν όσο το δυνατόν περισσότερα σενάρια φιλοξενίας και εργασίας όπως: δωμάτιο με διπλό κρεβάτι ή με δύο μονά στρώματα, διακριτό χώρο για εργασία και τυπικές ή άτυπες συναντήσεις , οπτικό άνοιγμα στη θέα της πόλης, διαφάνεια προς το μπάνιο.

status: Speculative project
program: hotelroom
area: 24 m2 (aprox 258 sqf)
location: somewhere in Athens, Greece
team: Karkatselas Nikos, Moras Antonios
client: Domes Magazine
year: 2016
(shortlisted, position 7-30 among 260+ proposals)
Room 18 is organized around an adaptable unit that includes all the facilities of the 4 star room. Conceptually a single surface solution is incorporated that folds and unfolds depending on the program. The materiality of the surface also functions as an identity element as there is a plethora of materials that could be applied to it that could bear sitespecific connotations (as wood, marble, cement, mosaic etc depending on the area of the city) .
Programatically there were various scenarios that should be met in order to adress the emerging role of the hotelroom in the everchanging cheapflight landscape as; the double room standard, the two single-matress room, seperate space for work and meetings, opening to the urban view and the hedonism of the metropolitan transparent bath.

